Video: Join Fine Art Photographer Keith Dotson on Location at the 1885 Mansion of William W. Gray in Illinois
This is the remarkable Gray House, a Queen Anne-style house designed by architect George F. Barber sometime around 1885 for William Walden Gray (1825 – 1895) in the city of Grayville, Illinois.
William Gray and his father James Gray were early founders and prominent citizens of the town that got their name. W.W. Gray — as he is usually called in the sources — platted the town in 1849, and it became incorporated in 1855.
W.W. Gray and his sons were involved in banking, lumber river transport, and operated one or more slaughterhouses. Gray was also a postmaster. Upon his death, W.W. Gray left a significant wealth to his heirs, many of whom worked in banking or industry, and who were described as wealthy in their obituaries.
Keep reading for more history of this remarkable old house.

Buy a fine art photographic print of the William Gray House

Buy a fine art print of the historic small town architecture in Grayville
Fine art black and white prints of this photograph are available on my website here.

About the Gray Mansion in Grayville, Illinois
The house was listed in in the National Register of Historic Places in 1992 and some of the historical details differ from a placard postioned in front of the house.
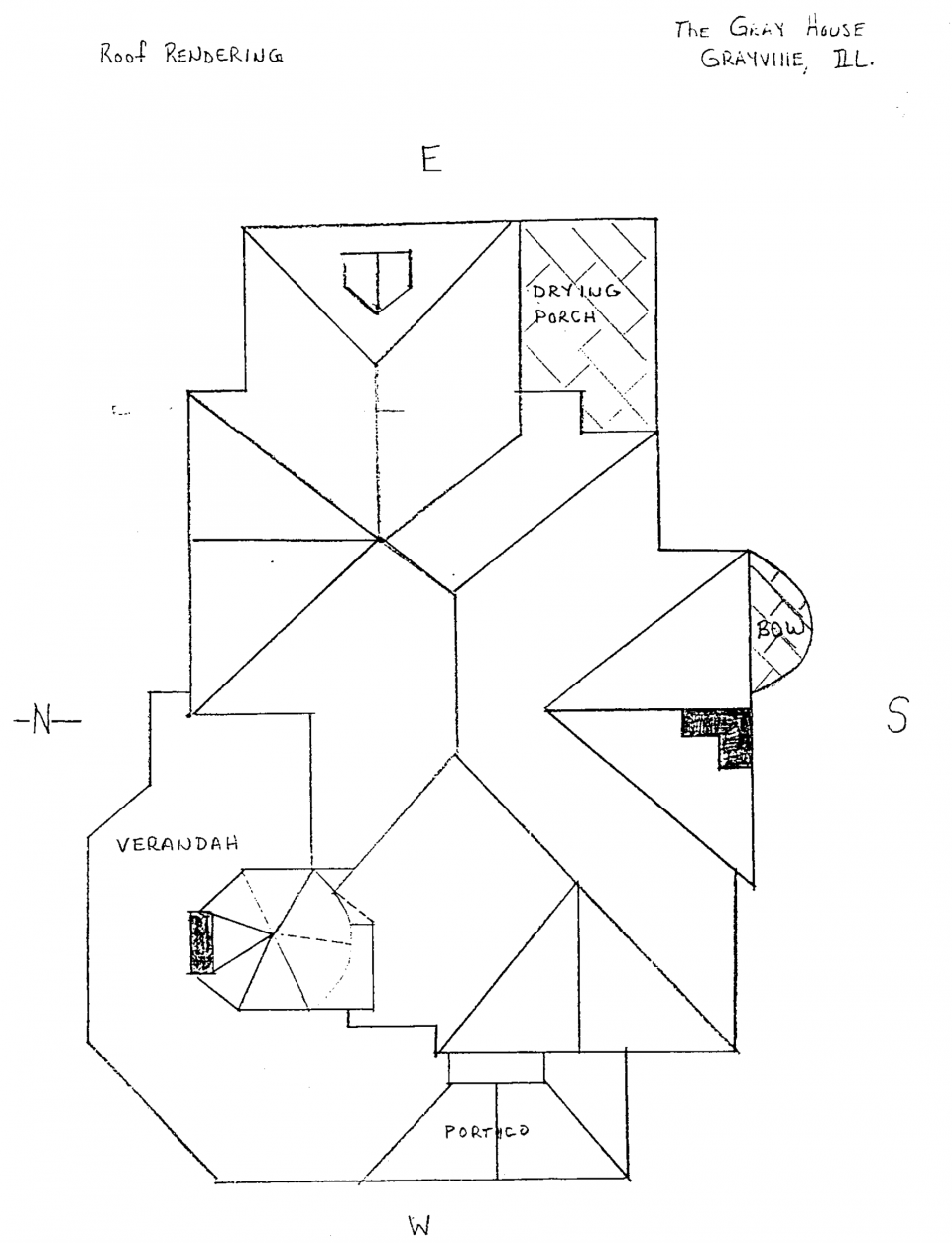
Hand drawn floorplans of the house from the National Register of Historic Places



Differences in the Historical Accounts
Below are copies of pages from the National Register of Historic Places application (1992) followed by the historical placard posted in front of the mansion. As you will see, some of the dates and other facts don’t match up.





The placard in front of the house says, “This home was built by the Gray Family, the family that gave Grayville it’s (sic) name. When completed in 1896, it was the finest home in this area and one of the first to have electric lights, running water, and steam heat. Slave quarters and a stable were in the rear. It became known as the ‘Gray Mansion’ and retains its original grandeur and charm today”
The house completion date of 1896 differs from the history given in the National Register application, which said 1885. The sign also says there’s a stable and slave quarters in the back — but according to the National Register, that’s a coach house — which I suppose could also mean a stable — but it was built at the same time as the main house in 1885, which was well after the Civil War in the 1860s when enslaved people were freed.
According to the National Register — the coach house was converted to four apartments in the 1950s, with two upstairs and two downstairs, and also in the 1950s eight motel rooms were added adjacent to the coach house.
Slavery in Illinois
Even though the State of Illinois is not generally thought of as a slave state, there were some slave-owning families in the southern part of the state. According to some sources, the patriarch of the family — James Gray — was a slave-owner. He is said to have donated some old slave quarters on a lot a few blocks away to the city . The land was used to build a police station, but after reviewing a recent update of Google Street View, the lot appears to be vacant now.
I hope you enjoyed seeing this old house. I have to say that it’s beautiful but also quite creepy to me.
If you have any other important details about the William W. Gray House or its history, please leave a comment.
Sources and Links
Abraham Lincoln Presidential Library, Papers of Abraham Lincoln Digital Library. “Gray, William W.”
Find-a-grave. “William Walden Gray.”
The Historical Marker Database. “Gray Mansion Historical Marker.”
The Historical Marker Database. “James Gray’s Stables and Slave Quarters”
Smith. George Washington. A history of southern Illinois : a narrative account of its historical progress, its people, and its principal interests. 1824. Page 158. Accessed via Wikipedia.
Wayback Machine. National Register of Historic Places Registration Form. “Gray, William W., House.”
Wikipedia. “Grayville, Illinois.”
Wikipedia. “History of Slavery in Illinois.”
Wikipedia. “The William W. Gray House.”
Discover more from Shadows and Light
Subscribe to get the latest posts sent to your email.
